Dorfplatz

Ehemaliges Wohnhaus der Familie Krause
Ehemaliges Wohnhaus der Familie Krause aus den 20-er Jahren und 1971 kurz vor dem Abriss

Im Jahre 1971 war es zum Ausbau der Landesstraße notwendig, im Ortskern von Obergude das Wohnhaus eines Gehöftes abzubrechen. Die verbliebenen Wirtschaftsgebäude wurden zunächst weitergenutzt. Nach einem Besitzerwechsel verfielen die Gebäude mehr und mehr.

Die Oberguder Bevölkerung nahm immer mehr Anstoß an dem Zustand der Gebäude. Es entstand der Wunsch, das Gebäude abzureißen und die Chance wahrzunehmen, im unmittelbaren Ortskern eine Möglichkeit der kulturellen und gesellschaftlichen Entfaltung zu schaffen. Durch mehrere Initiativen seitens der Bewohner war es möglich, die Kommunalpolitiker von diesem Vorhaben zu überzeugen. Das Anwesen wurde durch die Gemeinde Alheim erworben und das Gebäude im März 1997 abgerissen.

Aufräumungs-, Einebnungs-, Eingrünungs- und Bepflanzungsarbeiten
(Bei Aufräumungs-, Einebnungs-, Eingrünungs- und Bepflanzungsarbeiten wurden von der Bevölkerung in 11 Arbeitseinsätzen 260 Arbeitsstunden geleistet.)

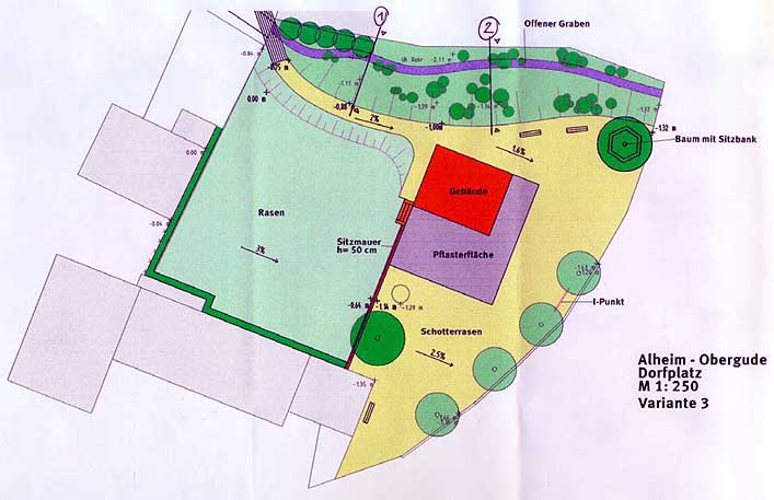
Unter Beteiligung aller ortsansässigen Vereine und einer breiten Masse der Bevölkerung wurde nun die konkrete Nutzung und Gestaltung des Platzes in Angriff genommen. Zu Beginn des Jahres 2000 ist die Arbeitsgruppe mit Hilfe eines Planungsbüros zu einem Ergebnis gekommen.

Ein Teil der Planung besteht darin, den vorhandenen, teilweise verrohrten im Grundstück verlaufenden Bachlauf zu renaturieren und hiermit diesen den Kindern als Spielfläche zur Verfügung zu stellen. Die Renaturierung soll zudem zu einem weiteren Baustein im bereits vorhandenen -Wassererlebnispfad Gudegrund- werden.

Hauptziel ist es, den Platz als Ort der Kommunikation für alle Altersgruppen der Bevölkerung entsprechend zu gestalten. Ein erster Schritt ist die Eröffnung des Jugendraumes in unmittelbarer Nähe des Platzes. Ein Schritt in die gleiche Richtung ist die evtl. Umnutzung des angrenzenden Pfarrgartens als Zeltplatz der im Ort ansässigen Christlichen Pfadfindergruppe.

Die Planungen schließen auch die Nutzung als eine touristische Anlaufstation mit ein. Hierbei wird besonders die Möglichkeit der bäuerlichen Direktvermarktung gesehen. Erfreulich ist es, dass hier nicht eine vorgefertigte Schablone zur Nutzung bzw. Gestaltung des Platzes genommen wurde, sondern von dem ersten Augenblick an die Oberguder Bevölkerung der Initiator und Gestalter war.